Центр детства и спорта открыт в пригороде Парижа, Франция
Основанная в 2018 году Чарльзом Эстерсом и Пьером Мартен-Сент-Этьеном, архитектурная фирма HEMAA придерживается контекстуального подхода, основанного на трезвости, и опирается на живой мир. Каждый проект является результатом тщательного изучения окружающей среды в поисках баланса между природой, использованием и материалами. Новый Центр детства и спорта Parc des Loges в Эври-Куркуронне (Большой Париж, Франция) полностью воплощает эту философию: нежная ландшафтная композиция, построенная из био- и геоисточников, служит общественному объекту, который является открытым, щедрым и экологичным.
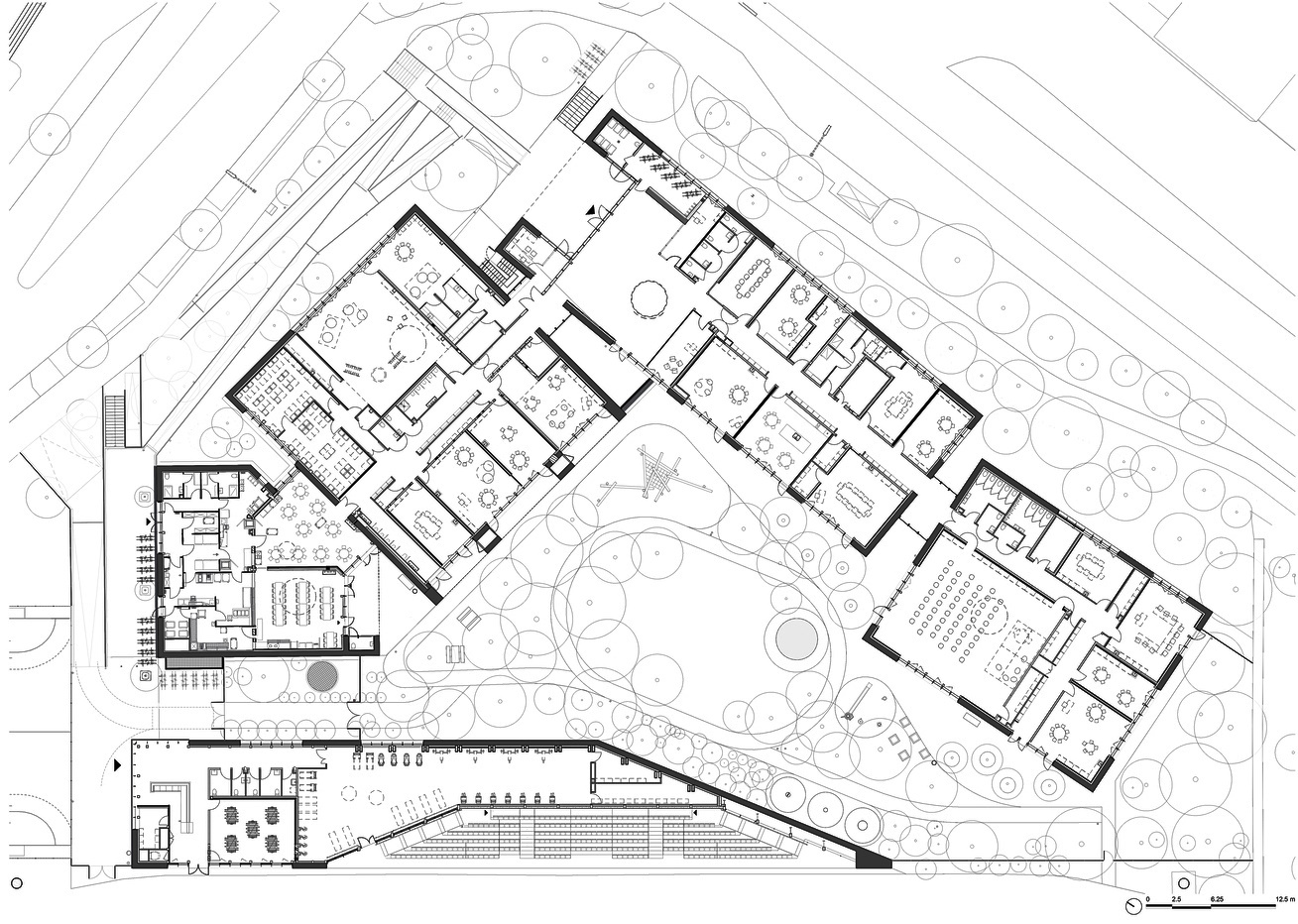
Идеально вписанный в естественную топографию участка, проект повторяет склон без искусственных изменений. Пять объектов - детский сад, начальная школа, центр присмотра за детьми, кафетерий и спортивная площадка - расположены вокруг центрального садового дворика, защищённого от улицы, но открытого пейзажу. Соединённые изящными застеклёнными переходами, эти автономные объёмы способствуют естественному освещению, визуальным связям и взаимосвязи с жилой средой. Как аллегория материалов, из которых состоит Parc des Loges, фасады выполнены из несущего утрамбованного грунта, а внутренний каркас полностью деревянный.

Дорожки вьются между недавно посаженными деревьями, естественным образом расширяя территорию школы и превращая её в парк. Детский сад превращается в прирученный лес, засаженный дубами, ясенями, клёнами и вязами, а также полянкой, на которой можно свободно играть. Проект предлагает игровой и захватывающий подход к обучению, который глубоко укоренён в природе и живом мире.

Весь проект был разработан с учётом требований охраны окружающей среды. 665 м3 несущего грунта, использованного для фасадов, что эквивалентно 1330 м2 стен толщиной 50 см - были получены при раскопках Большого туннеля парижского метро. Утеплённые конопляной ватой, эти стены сохраняют естественную воздухопроницаемость утрамбованной земли.


Зелёные крыши (толщиной 15-20 см) повышают тепловой комфорт и способствуют естественному увлажнению. Регулируемые козырьки и глубокие выступы крыши естественным образом регулируют солнечный свет. Ориентация здания позволяет улавливать зимнее освещение и способствует естественной летней вентиляции. Обильная и разнообразная растительность ограничивает воздействие городских "островков жары" и укрепляет местное биоразнообразие.

Дерево и утрамбованная земля создают мягкую, укоренившуюся архитектуру с простыми геометрическими формами. В этом рабочем районе, где многие дети не покидают город во время школьных каникул, детский центр призван стать как местом обучения, так и местом для отдыха. Утрамбованная земля - живой, дышащий материал, который привлекает внимание и создаёт уникальную обстановку для детей, растущих в городе, построенном в основном из бетона. Дерево, тёплое и тактильное, определяет интерьеры и структуру. Основание из низкоуглеродистого текстурированного бетона, украшенного глазурованными панелями на высоте 60 см (высотой с ребёнка), сочетает в себе прочность, естественное освещение и интимность.


Спортивный комплекс, естественно, дополняет этот архитектурный стиль. Трибуна на 300 мест, идеально ориентированная, обеспечивает оптимальный комфорт для зрителей. Пологая крыша спускается к зоне отдыха, сохраняя освещение и виды во внутренних дворах. Интегрированный в единое целое, он укрепляет идею общего, объединяющего поколения и открытого общественного пространства в самом центре города.

Поделиться:
Источник: archdaily.ru




Комментарии