Дом-ракушка с бассейном в городе Абдулла аль-Салем, Кувейт
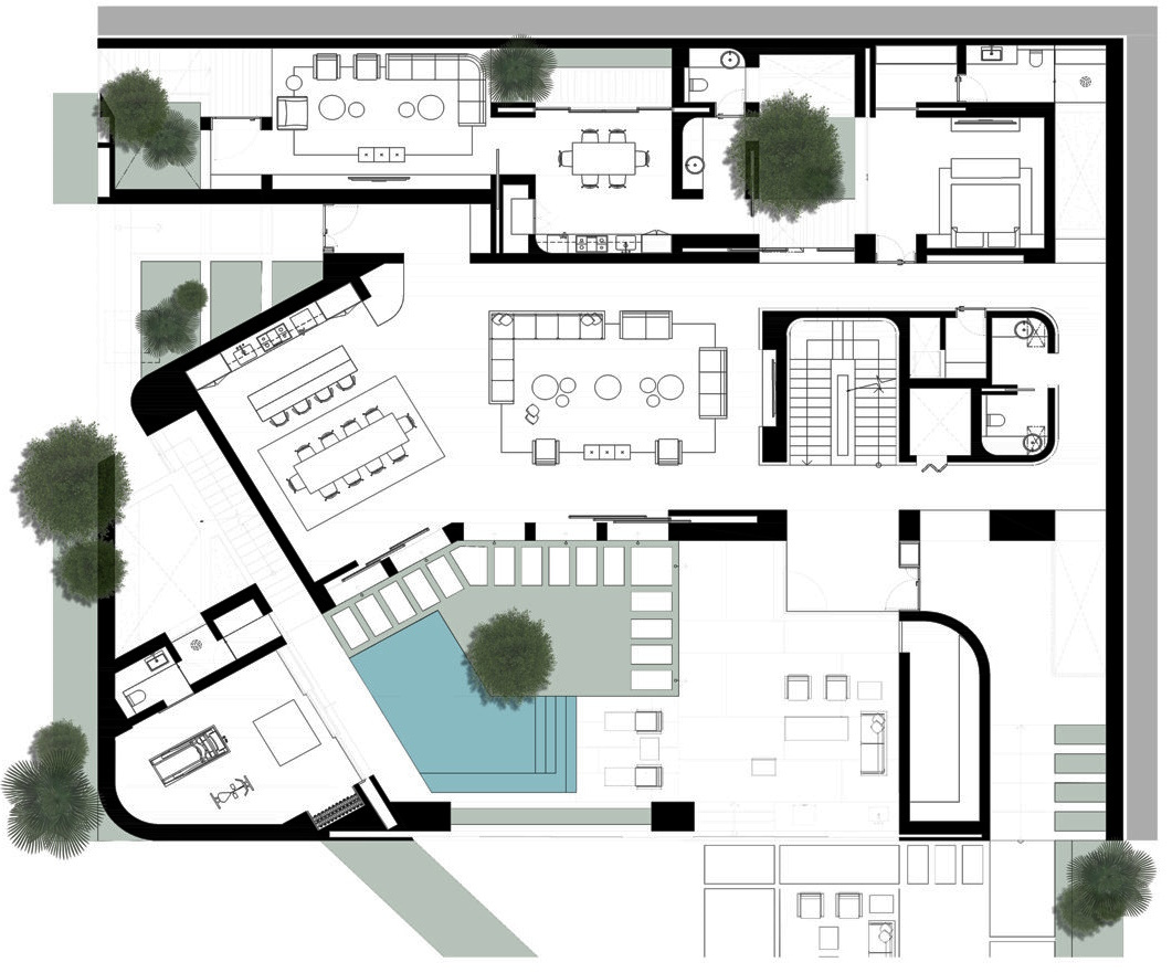
Дом-ракушка (Shell House) - это жилой проект, который переосмысливает традиционный дом с внутренним двором с помощью языка мягкости, света и пространственной многослойности. Проект, расположенный на угловом участке в Кувейте, вдохновлён органичной морфологией панциря — защищающего снаружи, открытого и заботливого внутри. В его центре находится пышный, уютный внутренний двор с бассейном, который виден из основных жилых помещений дома и домашнего тренажёрного зала, что делает внутренний двор как буквальным, так и концептуальным якорем. Архитектура мягко обволакивает это ядро серией мягких изгибов, которые определяют форму здания и направляют восприятие пространства во всем его объёме.
Дом расположен на трёх различных открытых уровнях, каждый из которых тщательно продуман для обеспечения максимальной конфиденциальности, открытости и удобства использования круглый год. На уровне земли основные жилые помещения выходят непосредственно в тенистый сад и зону у бассейна, а раздвижные панели во всю высоту соединяются с небольшим садом, позволяя клиенту переключаться между ограждением и открытостью.

Просторная терраса-балкон расширяет гостиную на верхнем уровне, предлагая приподнятую открытую комнату, которая сочетает в себе прекрасный вид и уединение. Кульминацией путешествия станет подъём на крышу, где из солярия и полностью застеклённой комнаты открывается панорамный вид на город, что знаменует собой момент уединения, созерцания и визуальной разрядки.

Архитектурная стратегия ставит во главу угла преемственность и контекст. Вместо того, чтобы создавать массивную конструкцию, объёмы здания расположены в шахматном порядке, постепенно удаляясь от улицы, чтобы уменьшить визуальный вес и создать наполненные светом террасы. Такой подход смягчает городскую атмосферу дома, делая его похожим на одноуровневый дом с улицы, в то время как внутри он разворачивается вертикально. Эти уступы засажены каскадной растительностью, которая не только добавляет уединения, но и пропускает солнечный свет во внутренние помещения, создавая динамичные тени и повышая тепловой комфорт в течение всего года.


Выбор материалов зависит от климата и тактильных ощущений. Палитра из светлой штукатурки и приглушённого камня отражает солнце Кувейта и гармонирует с окружающим пустынным ландшафтом. Стратегия озеленения — использование местных засухоустойчивых видов - отражает стремление архитекторов к экологичности и неприхотливости в обслуживании. Вместе эти элементы создают дом, который дышит вместе с окружающей средой, обеспечивая как защиту, так и проницаемость.


Shell House - это воплощение сдержанности, интимности и пространственной щедрости. В нём четкость типологии внутреннего двора сочетается с эмоциональной мягкостью изогнутой архитектуры, создавая дом, который одновременно является современным и неподвластным времени. Благодаря тщательному сочетанию формы, света и природы в доме достигается редкий баланс — замкнутый и в то же время открытый, скульптурный и в то же время приземлённый, уединённый и в то же время экспансивный.


Поделиться:
Источник: archdaily.ru




Комментарии