Новый дом для престарелых в городе Прени-Шамбези, Швейцария
Резиденция Кристингер предлагает около пятнадцати арендуемых квартир, предназначенных для пожилых людей. Проект основан на завещании миссис Кристингер, которая пожертвовала муниципалитету участок земли площадью 1933 м2 и виллу, построенную на нём в 1940-х годах. После получения завещания, в котором имущество было передано в пользу пожилых граждан муниципалитета, муниципалитет начал размышлять о типе жилья для населения, испытывающего снижение автономии.
Резиденция, построенная вокруг центрального внутреннего дворика, который расширяет пространство на открытом воздухе, стремится избежать институциональных ограничений. Внешняя циркуляция продолжается во внутреннем дворике и обеспечивает доступ к отдельным квартирам. Постепенные переходы чётко обозначают переход между общими зонами и отдельными входами, сохраняя интимность. В дополнение к внутреннему дворику, жильцы могут пользоваться несколькими местами общего пользования. В распоряжении жильцов общая кухня, тренажерный зал, библиотека, прачечная и комната для гостей.

Внутренний дворик оформлен на языке уличного дизайна, сочетающего минеральные материалы: бетонная дорожка, отделанная терраццо, стены из утрамбованного кирпича и светильники из необработанной меди по-новому интерпретируют материальность экстерьера и вносят свой вклад в неоднозначность этого неотапливаемого, но в то же время спокойного пространства.

Внутри апартаментов царит тёплая домашняя атмосфера: колонны и балки из лиственницы, дубовые окна и полы, а также кессонные плиты из побеленной древесины. Всё здание построено на основе местных систем поставок древесины и сертифицировано как "Швейцарская древесина" (Bois Suisse).

Резиденция Кристингера воплощает в себе образцовый подход к экологичности. Используя биоматериалы и материалы местного производства - дерево, землю и растительность - и используя климатические преимущества внутреннего дворика, проект сводит к минимуму выбросы углекислого газа, обеспечивая пассивный тепловой и гигрометрический комфорт.


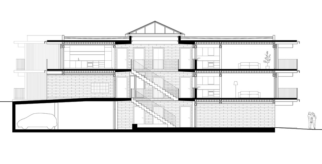
Бетон используется редко, только для полуподземной парковки, шахты лифта и пешеходных дорожек, в то время как остальная часть здания полностью выполнена из швейцарского дерева. Материалы были выбраны с учётом низкого воздействия на окружающую среду: утеплитель из древесного волокна, перегородки из переработанного гипсокартона и целлюлозы, а также прессованный глиняный кирпич для стен внутреннего дворика.

Зелёная крыша уменьшает количество "островков тепла", одновременно охлаждая фотоэлектрические и солнечно-тепловые панели, повышая их эффективность и способствуя управлению ливневыми водами на объекте за счёт их удержания и сброса в реку.


Поделиться:
Источник: archdaily.ru




Комментарии