Новый ресторан Aster Джошуа Пэриса в городе Шанхай, Китай
Ресторан Aster, возглавляемый шеф-поваром Джошуа Пэрисом, - это новое заведение, вдохновлённое одноименным цветком, астрой, что также означает "звезда". Дизайн ресторана воплощает естественную структуру цветка - центральный диск, окружённый расходящимися лепестками, - в пространственном оформлении. Гости собираются в самом центре цветка и ужинают под созвездием света.
Шеф-повар британского происхождения Джошуа Пэрис обладает в Aster 19-летним кулинарным опытом по всему миру. Его карьера охватывает Новую Зеландию, Великобританию, Австралию и Китай, включая сотрудничество с Ричардом Эккебусом в ресторане 58° Grill в Шанхае и участие в открытии Park Hyatt в Шэньчжэне. Период становления, проведённый под руководством Поля Пайре в легендарном ресторане UV, привил ему философию дисциплины, точности и неустанной утончённости. Его кулинарное кредо простое: подвергать сомнению всё и совершенствовать каждое блюдо до тех пор, пока его нельзя будет усовершенствовать дальше.

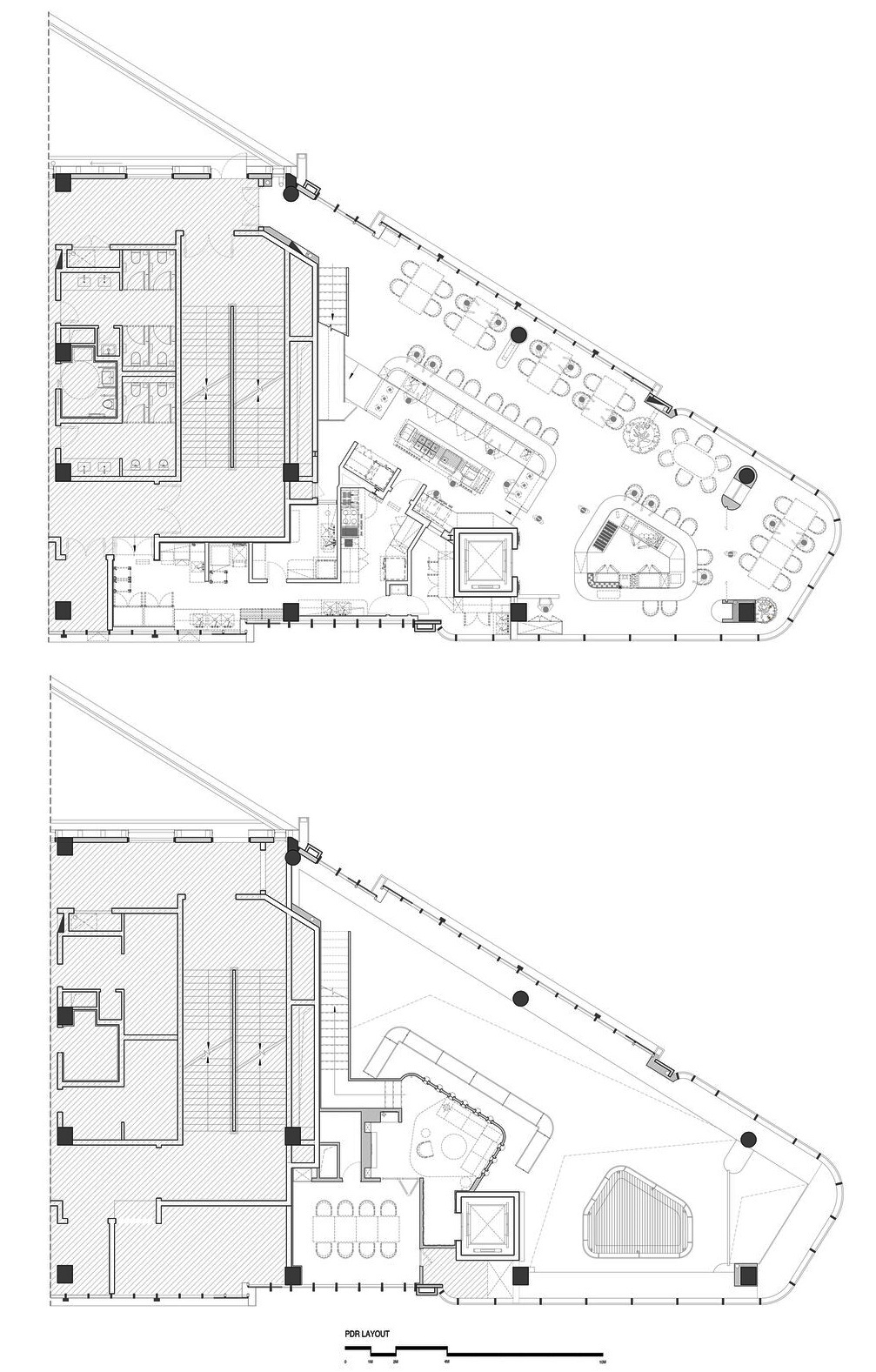
Все начинается с цветочного центра: круглая барная стойка и обеденная стойка открытой кухни образуют единую сцену. Это центральное пространство обеспечивает непрерывное обслуживание на 360 градусов. Посетители, сидящие за стойкой, находятся на расстоянии вытянутой руки от кулинарного действа и непосредственно взаимодействуют с шеф-поварами. Мягкий ореол света вдоль основания барной стойки перекликается с потолочной инсталляцией, создавая эффект погружения в атмосферу. Тактильная отделка бара и прилавков из глины ручной работы напоминает слоистый камень, придавая помещению атмосферу ремесленничества.

Над головой "корона" состоит из 39 модульных рам, расположенных по спирали, каждая из которых содержит полупрозрачный фиолетовый лепесток, изготовленный из переработанной бумаги xuan. Ночью освещение по периметру освещает края лепестков, превращая потолок в плывущую туманность. Система разработана с учётом экологичности: лепестки можно перекрашивать, а рамки можно использовать повторно.

Вдоль окон расположены многослойные подвесные светильники, продолжающие цветочную тематику. В сочетании со структурными балками они превращают архитектуру в поэзию, а тонкие перепады высоты делают каждый из них уникальным. Под этим декоративным слоем расположены точечные светильники, обеспечивающие оптимальное освещение каждого стола.


Палитра материалов из дуба, камня и бетона напоминает чашечку, в которой распускается цветок. Дубовый пол в "ёлочку" расходится от барной стойки, напоминая о корнях, уходящих в почву. Закругленные края из дерева и камня обеспечивают комфорт, а глиняные рельефы ручной работы в местах соприкосновения придают изделию особое тактильное ощущение. Пространство кажется укоренившимся: корни под ним, чашечка рядом с вами и цветок над головой.


Уединённая гостиная в мезонине, отделанная орехом и бархатом, отличается изменённой геометрией, которая создаёт интригу. Зеркальный балдахин из античной бронзы, украшенный абстрактными цветочными мотивами, расширяет ощущение пространства, образуя тихое возвышенное "небо". В приватной столовой над столом в виде созвездий висит инсталляция "Звёздная пыль" из дымчатых лепестков фиалки. На тёмном текстильном фоне акцент делается на еде и беседе, а бархат и тканые ткани создают мягкую, тёплую и интимную атмосферу.

Поделиться:
Источник: archdaily.ru




Комментарии