"Садовый домик" у озера Лиси в городе Тбилиси, Грузия
Это новое семиэтажное здание задумано как модульная конструкция, в которой все компоненты, но не каждый полноценный модуль, собраны за пределами здания. Это представляет собой значительное новшество в грузинской архитектуре, где сборка за пределами здания остаётся на стадии становления.
Проект представляет собой дома с садами, расположенные в едином жилом квартале. Модульные гостиные чередуются между собой овальными и прямоугольными объёмами, создавая вертикальный ритм по всей сетке фасада. В результате эволюции видения "Садовый домик" включает в себя просторные веранды, которые поощряют посадку растений на открытом воздухе и расширяют жилое пространство за счёт ландшафта.

По своей сути, проект отражает индивидуальность в рамках коллективной структуры — вертикального сообщества, где жители наслаждаются уединением, дневным светом и зеленью, которые обычно ассоциируются с загородной жизнью, но в то же время находятся в компактной городской конфигурации. Он бросает вызов традиционным типам квартир, отдавая предпочтение просторному пространству, естественному освещению и бесшовной связи с внешним миром.

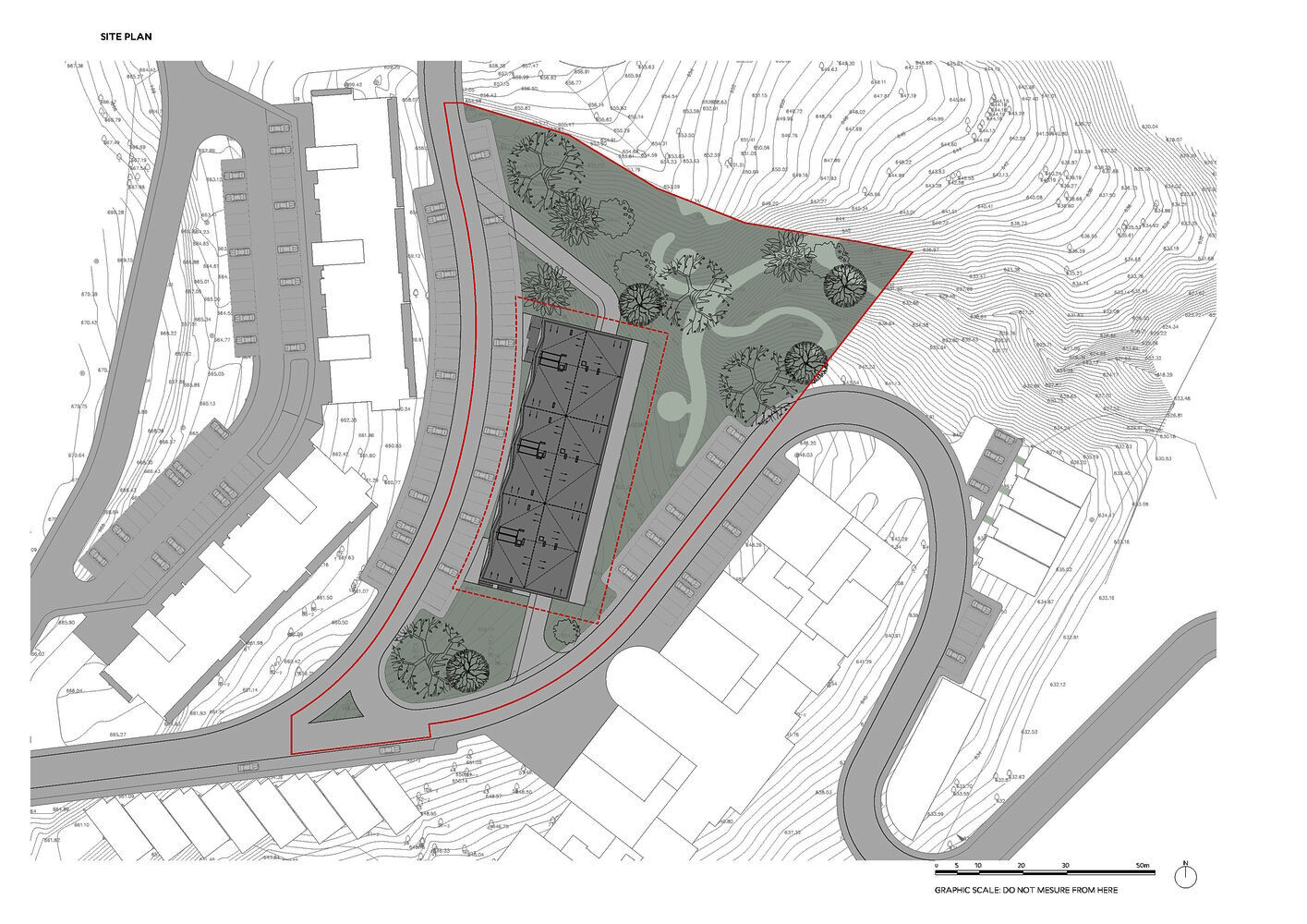
Комплекс расположен к северо-западу от Тбилиси, в районе Сабуртало, на пологом склоне холма рядом с озером Лиси, откуда открывается великолепный вид на город. В рамках генерального плана, разработанного несколькими международными фирмами — Architects of Invention, Рикардо Бофиллом и UN Studio, — "Садовый домик" представляет собой один из нескольких 5-7-этажных жилых блоков, расположенных рядом с частными домами.

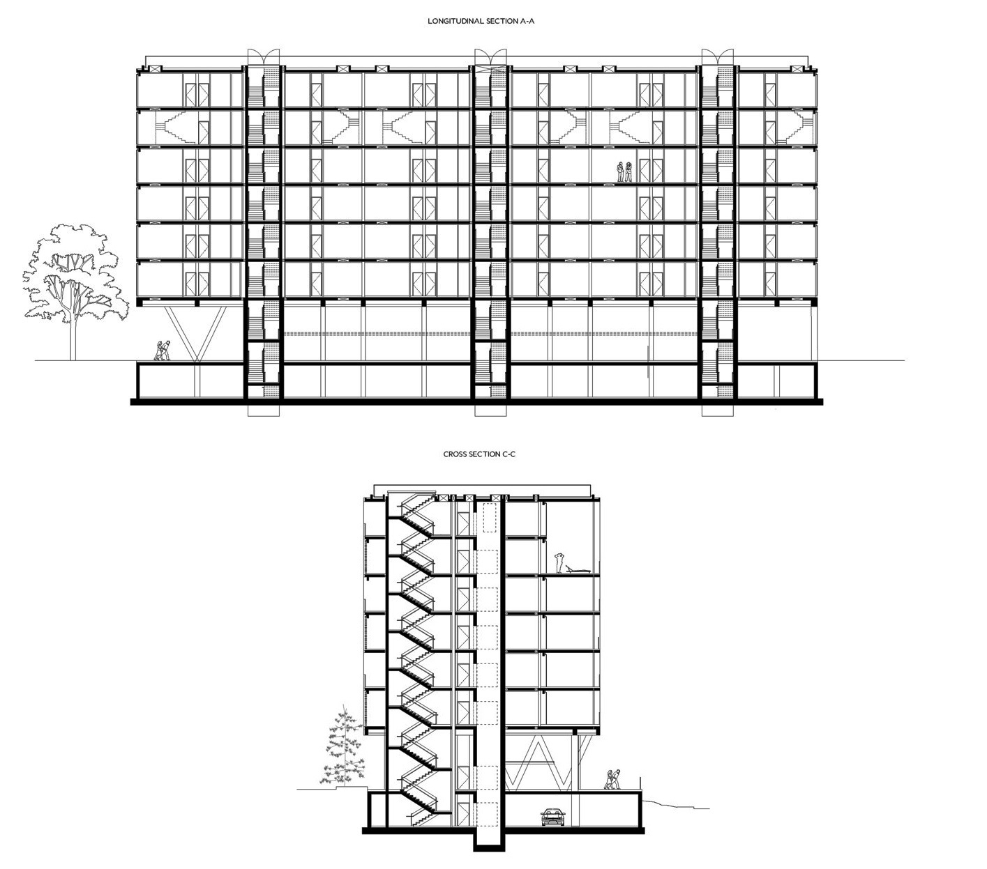
Здание состоит из 42 квартир, расположенных на семи отдельных жилых этажах, с коммерческими помещениями на уровне земли и парковкой под этажом. По вертикали здание разделено на три блока, в каждом из которых есть лестница и лифт, обслуживающий две квартиры на лестничной площадке. Из типичных апартаментов открывается двусторонний вид на восток и запад, в то время как на верхних этажах расположены более просторные дуплексы. Благодаря такой ориентации открывается максимальный панорамный вид на Тбилиси и западные холмы. Фасад имеет плоскую и изогнутую геометрию, создавая скульптурное, чувствительное к свету выражение, которое меняется в течение дня.

Двухсторонняя планировка обеспечивает каждой квартире естественную перекрестную вентиляцию и контрастный вид на город и склоны холмов. Полузакрытые "стеклянные комнаты", выходящие окнами на город, обеспечивают круглогодичный доступ к открытому пространству, а большие балконы, усовершенствованные в результате переговоров с застройщиком, стали фирменным элементом проекта. Наклонный рельеф позволяет незаметно интегрировать парковку и приподнять жилые этажи, чтобы улучшить обзор, в результате чего получается модульная, но выразительная форма.

В проекте используется гибридная конструктивная система из бетона и стали. Три железобетонных сердечника стабилизируют здание, в то время как треугольные бетонные ребристые плиты сокращают расход материала, улучшают несущую способность и увеличивают тепловую массу для пассивного регулирования энергии. Фасад сочетает панели с двойным остеклением в тонких алюминиевых рамах с участками открытого бетона и окрашенным стеклом, где это необходимо для визуальной целостности.

Террасы отделаны плитами из белого мрамора, которые подчёркивают сдержанную и долговечную палитру материалов. Экологичность обеспечивается за счёт заводского изготовления на месте, сокращения отходов и долговечности материалов. Структурная чёткость здания, эффективная внешняя оболочка и отделка с минимальными затратами на техническое обслуживание делают его современной и устойчивой моделью жилья в Грузии.


Поделиться:
Источник: archdaily.ru




Комментарии