Жилой "Дом на вершине" в городе Сеул, Южная Корея
В книге "A Pattern Language" (1977) Кристофер Александер предложил, чтобы жилые здания в городах были не выше шести этажей. После достижения этой высоты, утверждал он, жители начинают отдаляться от своей уличной культуры - не только физически, но и социально. Городская жизнь становится абстрактной; тактильная и эмоциональная непосредственность улицы теряется. По мнению Александера, жизнеспособность города основана на человеческом масштабе - это мнение разделяет Джейн Джейкобс, которая выступала за то, чтобы улицы были ареной общественной жизни и создавали разнообразные, удобные для прогулок районы, где люди живут, работают и взаимодействуют, преодолевая социальные барьеры.
Maison Le Sommet, жилой проект в стиле бутик, придерживается этой философии как сознательного отхода от культуры высотных апартаментов, которая доминирует в городском строительстве Южной Кореи. Расположенный на вершине живописного холма Соэрай Мэул (Soerae Maeul) в сеульском районе Каннам ‒ районе, известном своим французским культурным влиянием, усаженными деревьями улицами и уютной жизнью кафе, - Maison Le Sommet воплощает урбанизм в человеческом масштабе, который является одновременно местным и вневременным.

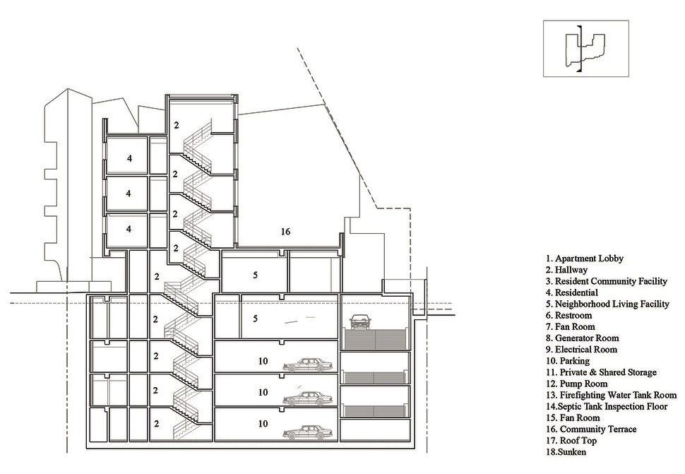
Архитектура здания достигает всего четырёх этажей, оно удобно расположено на склоне холма и скорее сливается с рельефом, чем доминирует над ним. Его массивность обусловлена внутренней логикой бутик-резиденций, в то время как закругленные углы и мягкие изгибы балконов перекликаются с изгибами дороги на вершине холма - архитектурный жест, который отражает городской ритм и вовлекает в него гостей.

На уровне улицы первый этаж задуман как "гражданский порог" - место, открытое для проведения программ, которые дополняют как архитектуру Maison Le Sommet, так и повседневную жизнь Soerae Maeul. Из-за пологого рельефа нижний цокольный этаж также естественным образом соединяется с улицей, расширяя этот порог на два уровня.

Будь то кафе, изысканная концепция розничной торговли или даже небольшая районная клиника, они задумываются не как навязчивая идея, а как расширение сообщества, присутствие, которое обогащает диалог между улицей и жилищем. Как указано выше, двенадцать жилых единиц имеют большие окна, которые выходят прямо на зелёные кроны взрослых деревьев, растущих на улице.

Чтобы ещё больше углубить связь между частной и общественной жизнью, здание венчает озеленённый парк на крыше. Это общее пространство - нечто большее, чем просто удобство, это выражение коллективной городской идентичности. Жители могут разбивать сады, отдыхать или просто любоваться окрестностями, ощущая при этом связь с жизнью на улице внизу. Это новый тип "вертикального общественного пространства", где проходимая улица переходит в возвышенный ландшафт для общественных собраний и размышлений.

Каменные и плиточные поверхности, теплые деревянные полы и мягкая текстурированная отделка стен объединяют частные резиденции с коридорами, лестницами и общими пространствами комплекса, усиливая ощущение целостности на всех уровнях. Материалы были выбраны не только из-за их визуального спокойствия, но и из-за их физической теплоты, привлекательного прикосновения и подчеркивающего присутствие. Большие проёмы соединяют интерьер с окружающим ландшафтом, так что даже в помещении чувствуешь себя в ритме света и текстуры природы.

Maison Le Sommet не замыкает своих жителей в себе, а открывает их миру - свету, фактуре и умиротворяющему присутствию природы в городе. Это видение домашнего пространства, в котором индивидуальное и коллективное, частное и общественное объединяются в единую городскую ткань. Maison Le Sommet - это больше, чем просто многоквартирный дом; это одновременно и видение, и аргумент в пользу более удобного для жизни, инклюзивного и взаимосвязанного городского будущего - повествования, в котором жилье, собрания и обмен информацией объединяются, образуя живой гобелен коммерческой, жилой и общественной жизни.


Поделиться:
Источник: archdaily.ru




Комментарии