Двухэтажный жилой дом с подвалом и гаражом
Стиль общее:
Количество комнат:
Тип проекта
Дизайн-проект дома
Место
Новосибирск
Комнаты
4
Площадь
180 кв. м
Стиль
Лофт
Характеристики проекта:
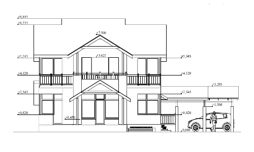
Этажность: 2 этажа
Общая площадь: 420 м2
Размеры дома: 28,2 м x 10,8 м
Планировка: свободная
Цокольный этаж: есть
Мансарда: нет
Гараж: есть
Фундамент: ленточный, монолитный, фунд.блоки
Несущие стены: кирпич керамический, утеплитель и отделка облицовочным кирпичом
Перекрытия межэтажные, чердачное — сборные ж/б плиты.
Пол подвала — пол по грунту
Крыша — многоскатная. Кровля — битумная черепица
Экстерьер
Стиль: Лофт
Планировка










